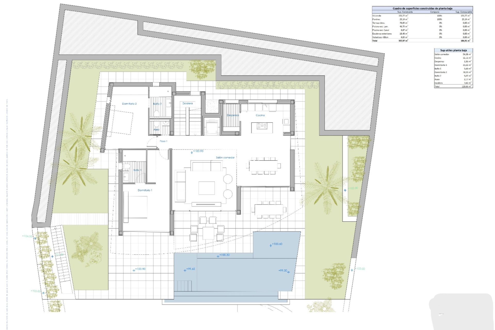
LOCATIE: We hebben deze prachtige luxe villa gelegen in de stad Calpe in de provincie Alicante, in een rustige en geconsolideerde omgeving. Het centrum van Calpe met zijn stranden ligt op ongeveer 5400 meter afstand. EIGENDOM: Deze villa met een bebouwde oppervlakte van 751 m2, gebouwd op een perceel van 1042 m2, biedt een spectaculair uitzicht op de zee, de Peñón de Ifach en Calpe. Het is verdeeld over 3 verdiepingen, met elkaar verbonden met een interne trap en een lift. Vanuit de ingang van de tuin via automatische deuren, hebben we direct toegang tot de garage-ingang op de semi-kelderverdieping waar we buiten een grote parkeerplaats vinden met capaciteit voor meerdere auto's. SEMI-KELDERVERDIEPING: vanaf de straat heeft u toegang tot het perceel en toegang tot de garage van 52m2. Hier vinden we ook een wasruimte en een wijnkelder. BEGANE GROND: we gaan via een interne trap of lift naar boven en hebben direct toegang tot het huis waar we een ruime woonkamer vinden met toegang tot een veranda van 25 m2 en het zwembad met een groot terras van 78m2. We vinden hier ook een open keuken naar de woon/eetkamer, volledig uitgerust, afgezien van 2 slaapkamers met hun en-suite badkamer en een gastentoilet BOVENVERDIEPING: 2 tweepersoonsslaapkamers met elk een eigen en-suite badkamer en twee open terrassen. UITRUSTING: Technal timmerwerk met veiligheidsglas, volledige keuken met Siemens apparatuur. LED-verlichting. Aerothermisch systeem voor warm water en vloerverwarming, geleide airconditioning (warm en koud) door het hele huis. Inbouwkasten, elektrische rolluiken, binnenalarm, pre-installatie van buitenalarm en beveiligingscamera's. Rechthoekig zwembad met overloopsysteem van 10x3,3 meter, barbecue, wasruimte, tuin, wijnkelder. Op het zuiden. Automatische toegangsdeuren. Energielabel A.
Als je meer informatie wilt, neem dan contact op met onze agent via whatsapp of vul het contactformulier in.
Contact opnemen via whatsapp